Обяви За нас Контакти
Продава ОФИС
град Варна, Бриз
акт 16
396 000 €
774 508.68 лв.

(3 046 €, 5 957.46 лв./m2)
Не се начислява ДДС
История на цената
Публикувана в 11:57 на 12 февруари, 2026 год.
Обявата е посетена 623 пъти.
Площ:
130 m2
Етаж:
Партер от 6
Строителство:
Тухла, Въведен в експлоатация 2017 г.

Описание на имота:


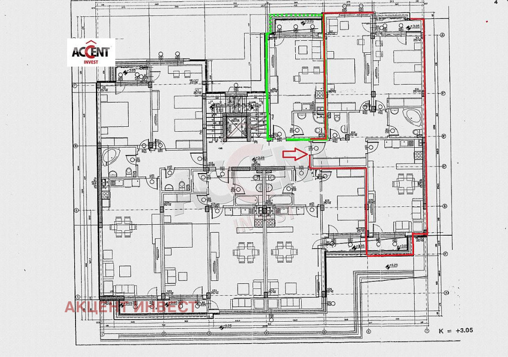
Акцент Инвест предлага на Вашето внимание офис на етаж 1 (партер), в нова завършена сграда, находяща се в ж.к. Бриз. Състои се от антре, голям дневен тракт с кухненски бокс, две спални (едната от която 16 кв.м.), две бани с тоалет и две тераси. Подходящ за кабинет, офис, студио и др.

Сградата, в която се намират предлаганитe апартаменти е завършена, АКТ-16. Челната фасада е ориентирана към морето с панорамна гледка към Варненския залив и е отделена от контактната зона море приморски парк булевард с 15 м. надлъжна залесена алея, локален път и озеленена система.

Обектът съдържа 15 м. открити обособени паркоместа за автомобили и нормативно изискуемите озеленени площи. Общ брой на паркоместата подземен и открит паркинг 32 места.

Тип на застрояването: отговарящо на категория Лукс

Степен на завършване: 'По БДС'.

Конструкция: Монолитна със стоманобетонова конструкция и безгредови стоманобетонови плочи с високи конструктивни показатели и повишена устойчивост на земетръс, ветрово и снегово натоварване.

Експлоатационни качества:

-Висока степен на енергийна ефективност.

-Ниски експлоатационни разходи.

-Високи качества на обитаване на жизнената среда чрез пряка комуникационна връзка към намиращата се в непосредствена близост екологично чиста рекреационна система: приморски парк плаж море.

-Високи екологични качества на вложените материали.

Недвижими Имоти Варна - Акцент Инвест - предлагаме богато разнообразие на Апартаменти в град Варна.
Особености
Тухла
Асансьор
С паркинг
За контакт:
0882367736
Брокер:
Николай Христов
0882367736
Още оферти от брокера: Продава | Дава под наем | Купува | Наема
Агенция:
АКЦЕНТ ИНВЕСТ
052 611 010
АКЦЕНТ ИНВЕСТ logo
Медал за прослужено време
В imot.bg от 2008 г.
accentinvest.imot.bg
Адрес:
област Варна, гр. Варна, бул. Мария Луиза 39, ет.3
http://www.accentinvest.com
ИЗПРАТИ ЗАПИТВАНЕ
ИЗПРАТИ ЗАПИТВАНЕТО

Продава ОФИС
град Варна, Бриз
акт 16
Обява: 1g177089024641065

396 000 €
774 508.68 лв.
История на цената
(3 046 €, 5 957.46 лв./m2)

Не се начислява ДДС
ЗАПАЗИ ОБЯВАТА

Местоположение: град Варна, Бриз, акт 16

Допълнителни данни за имотите в района и сравнение с други райони

Покажи

Период

и 3 месеца

* Средните цени са определени чрез медианна стойност