Обяви За нас Контакти
Продава 3-СТАЕН
град Варна, Левски 1
198 665 €
388 554.97 лв.

(1 839 €, 3 596.77 лв./m2)
Не се начислява ДДС
История на цената
Коригирана в 11:11 на 16 октомври, 2025 год.
Обявата е посетена 1355 пъти.
Площ:
108 m2
Етаж:
5-ти от 7
Строителство:
Тухла, Ще бъде въведен в експлоатация 2026 г.

Описание на имота:


id: 20890
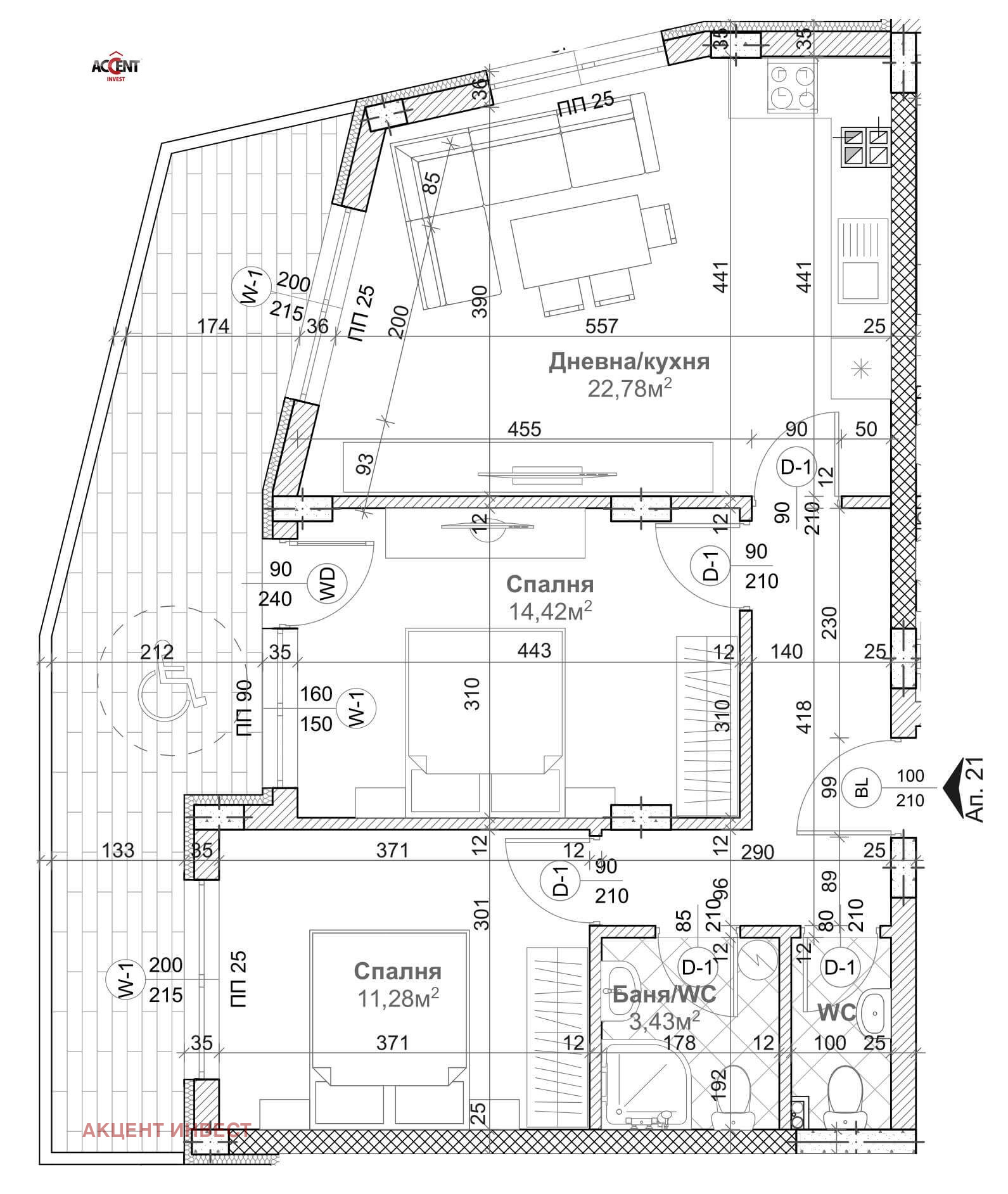
Ап.21 Дневна с кухненски бокс, 2 спални, баня с тоалетна, тоалетна, коридор, тераса. Към апартамента е включена и изба 17 с квадратура 4,52 кв.м.
Функционални апартаменти, с различна квадратура и оптимизирано вътрешно пространство.

Сградата съчетава иновации, функционалност и елегантен дизайн. Локацията на сградата предлага бърз и лесен достъп до основните градски артерии.

При планирането на комплекса основно внимание е обърнато на удобството и безопасността на бъдещите жители.

Проектът включва 7 надземни и 26 подземни паркоместа. Общият капацитет от 33 паркоместа е разумно разпределен, като е даден приоритет и на лесния достъп. За любителите на активния начин на живот са предвидени места за велосипеди, а противопожарната сигурност е гарантирана чрез специално евакуационно стълбище.

На първи етаж живущите ще могат да избират между двустаен и тристаен апартамент, като последният ще отговаря на най-високите стандарти за достъпност. Допълнителните удобства, като лични мази и складови помещения в самите апартаменти, са предвидени с мисъл за комфорта на жителите.

Архитектурният облик на сградата ще комбинира модерни тенденции с класически елементи. За сградата ще се използва стоманобетонна, гредова конструкция, укрепена с носещи колони, греди, шайби и здрави стоманобетонни плочи. С тази конструктивна основа, жилищните етажи ще се отличават с височина от 285 см. и 290 см., гарантирайки, че светлата височина във всяко жилище няма да бъде по-малка от 260 см. Така всяка стая ще се усеща по-просторна и светла.

Балконските парапети, с планирана височина от 1,05 м. от настилката, ще предоставят защита и комфорт, като същевременно позволяват на жителите да се наслаждават на изгледа. Прозрачните стъклени парапети ще предлагат невероятни гледки, докато вниманието към детайлите, като каменните облицовки и висококачествената мазилка, ще добавят допълнителна стилова насока.

Енергийната ефективност е ключов приоритет при изграждането на сградата.Външните ограждащи стени, с дебелина от 25 см., ще се подсилват с допълнителна топлоизолация, чиято дебелина ще бъде определена по специалния проект за енергийна ефективност. Визуалният аспект на сградата ще бъде подчертан с външна мазилка тип Баумит и с тилна каменна облицовка. Допълнителен акцент върху елегантността на конструкцията ще сложат корнизите, изработени от камък, които ще придават завършен и изтънчен вид на сградата.

Всеки елемент от проекта е избран с грижа за устойчивостта и дълготрайността на сградата, следвайки строгите национални стандарти.

Срок за завършване: началото на 2026г.
Виж всички обяви в accentinvest.bazar.bg или тук
Особености
Тухла
Асансьор
С гараж
С паркинг
За контакт:
0888628355

Този имот се предлага само на частни лица
Брокер:
Светлана Казанджиева
0888628355, 052611010
Още оферти от брокера: Продава | Дава под наем | Купува | Наема
Агенция:
АКЦЕНТ ИНВЕСТ
052 611 010
АКЦЕНТ ИНВЕСТ logo
Медал за прослужено време
В imot.bg от 2008 г.
accentinvest.imot.bg
Адрес:
област Варна, гр. Варна, бул. Мария Луиза 39, ет.3
http://www.accentinvest.com
ИЗПРАТИ ЗАПИТВАНЕ
ИЗПРАТИ ЗАПИТВАНЕТО

Продава 3-СТАЕН
град Варна, Левски 1
Обява: 1c172890774279660

198 665 €
388 554.97 лв.
История на цената
(1 839 €, 3 596.77 лв./m2)

Не се начислява ДДС
ЗАПАЗИ ОБЯВАТА

Местоположение: град Варна, Левски 1

Допълнителни данни за имотите в района и сравнение с други райони: Търсене в АРХИВ 2013 - 2025 г.











Добави/редактирай
вид имот и район
*Средните цени са определени чрез медиана стойност.